FERIEN IM BAUDENKMAL
Erleben Sie erholsame Ferien im historischen Fabrikantenhaus Schwellbrunn! Dieses liebevoll renovierte Baudenkmal verbindet authentischen Charme mit modernem Komfort und lädt Sie ein, die reiche Geschichte des Hauses zu entdecken. Geniessen Sie die idyllische Umgebung und die besondere Atmosphäre eines einzigartigen Feriendomizils. Buchen Sie jetzt Ihre Auszeit im Appenzellerland!
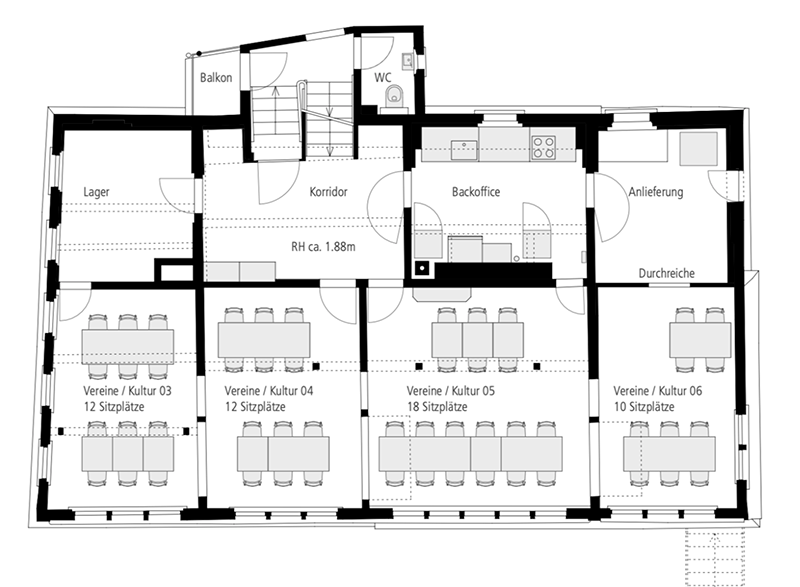
VERANSTALTUNGSRÄUME
Im historischen Fabrikantenhaus Schwellbrunn präsentieren wir Ihnen flexible Räumlichkeiten, die sich ideal an verschiedene Veranstaltungen anpassen lassen. Ob für Meetings, Workshops oder festliche Anlässe – hier finden Sie den perfekten Raum!
Im ersten Obergeschoss stehen Ihnen vier abtrennbare Räume zur Verfügung, die insgesamt Platz für etwa 50 Personen bieten.
Der Preis für einen Raum für 24 Stunden beträgt 150 CHF, während jede zusätzliche Stube nur 60 CHF kostet.
Zusätzlich haben Sie die Möglichkeit, eine moderne Küche mit Steamer für 250 CHF pro Tag (24 Stunden) zu mieten, um Ihre Veranstaltung kulinarisch aufzupeppen.
ÜBERSICHTSPLAN
MIETPREISE PRO 24H
1 Stube
Jede weitere Stube
Catering-Küche
Alle Stuben inkl. Küche pauschal
DETAILS UND BEDINGUNGEN
- Der Mietpreis versteht sich rein netto
- Im Mietpreis enthalten ist die Endreinigung, nachdem der Mieter die Lokalitäten besenrein verlassen hat
- im Mietpreis enthalten ist die kostenlose Benutzung der WC-Anlage und Gartenanlage. (W-Lan vorhanden)
Nicht enthalten:
- Kosten für Catering, Nutzung von Geschirr/ Besteck, allfällige Dekroation der Räume etc.
- Für diese Dienstleistungen (inkl. Miete Geschirr) stehen Ihnen verschiedene Dienstleistungsanbieter in Schwellbrunn und umliegender Region zur Verfügung. Für allfällige Adressen oder Inforamtionen stehen wir gerne zur Verfügung.
- Kaffeemaschine ist vorhanden, entsprechende Nutzungskosten/Verbrauch werden nach Auwand verrechnet.
Es besteht im gesamten Gebäude ein absolutes Kerzen- und Rauchverbot. Es stehen für die Tische elektrische Tischleuchten (Lix-Lampen) zur Verfügung. (Foto Eventraum / Stube 1)
Eventraum / Stube 1
Bietet Sitz-Plätze für 15 Personen
Eventraum / Stube 2
Bietet Sitz-Plätze für 20 Personen
Eventraum / Stube 3
Bietet Sitz-Plätze für 20 Personen
Eventraum / Stube 4
Bietet Sitz-Plätze für 15 Personen
BUCHUNGSANFRAGE VERANSTALTUNGSRÄUME
| M | D | M | D | F | S | S |
|---|---|---|---|---|---|---|
1 | 2 | 3 | 4 | 5 | 6 | 7 |
8 | 9 | 10 | 11 | 12 | 13 | 14 |
15 | 16 | 17 | 18 | 19 | 20 | 21 |
22 | 23 | 24 | 25 | 26 | 27 | 28 |
29 | 30 | 31 |